Buscador principal

B/O Miguel Oliver

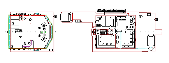
Cubiertas del buque

El Miguel Oliver es el primer buque español en cumplir la normativa ICES 209 que regula la emisión de ruidos y vibraciones al agua desde la embarcación.

El buque, con toda la maquinaria y equipo, ha sido construido bajo la supervisión e inspección de la sociedad de clasificación Bureau Veritas, alcanzando la notación de clase: I*HULL*MACH Special service: oceanografhic and fishing research. Unrestricted navigation. IC CLASS IB. ALM, ALS, AUT-PORT, REF-CARGO-QUICK FREEZE.

Presenta dos cubiertas corridas de proa a popa, una cubierta principal y otra superior, en la cual se sitúa la superestructura. La proa del buque es del tipo lanzada con bulbo y la popa es de espejo con rampa.

 

La botadura se realizó el 8 de agosto del 2006 y la primera campaña oceanográfica se inició el 11 junio del 2007 en el banco de Hatton, al noroeste de Irlanda.

Alzado del buque

Cubierta superestructura 2

 

Zona donde se ubica el puente de gobierno, con visión de 360º. La planta situada debajo del puente de mando está reservada para la realización de actos sociales y de representación.

Cubierta superestructura 1

 

Se encuentra una zona de habilitación y elementos como el pórtico abatible para izar el copo de la red, el bote de rescate, la maquinilla de cable de red, el pescante, la maquinilla de volteo del copo y las maquinillas científicas.

Cubierta superior

 

De popa a proa se encuentran el pórtico de popa, la rampa de popa, pórtico lateral para el CTD así como una zona de habilitación y laboratorios de oceanografía.

Cubierta principal

 

En la zona de popa y centro de popa se encuentran el parque de pesca y la sala donde se encuentran los grupos generadores. En el centro-proa la habilitación y los pañoles.


 

Doble fondo

 

Entre la cubierta principal y la tapa de doble fondo hay un solo nivel de altura variable según la zona del buque, en el que se sitúan, por ejemplo, las bodegas de muestras de pesca congelada y de muestras de pesca fresca, el local de los motores eléctricos propulsores y la cámara de auxiliares de propulsión.

Tanques bajo doble fondo

 

Zona destinada en su mayoría a tanques de combustible, aceite, agua de lastre y dulce, y lastre fijo, con algunos espacios libres para tomas de mar, espacios de sentinas, locales de las hélices, etc.

Introducción general al uso de cookies en MAPA.gob.es

Las cookies son archivos que se pueden descargar en su equipo a través de las páginas web. Son herramientas que tienen un papel esencial para la prestación de numerosos servicios de la sociedad de la información. Entre otros, permiten a una página web almacenar y recuperar información sobre los hábitos de navegación de un usuario o de su equipo y, dependiendo de la información obtenida, se pueden utilizar para reconocer al usuario y mejorar el servicio ofrecido.

Tipos de cookies

Según quien sea la entidad que gestione el dominio desde donde se envían las cookies y trate los datos que se obtengan se pueden distinguir dos tipos: cookies propias y cookies de terceros.

Existe también una segunda clasificación según el plazo de tiempo que permanecen almacenadas en el navegador del cliente, pudiendo tratarse de cookies de sesión o cookies persistentes.

Por último, existe otra clasificación con cinco tipos de cookies según la finalidad para la que se traten los datos obtenidos: cookies técnicas, cookies de personalización, cookies de análisis, cookies publicitarias y cookies de publicidad comportamental.

Para más información a este respecto puede consultar la Guía sobre el uso de las cookies de la Agencia Española de Protección de Datos.

Cookies utilizadas en la web

El portal web del Ministerio de Agricultura, Pesca y Alimentación utiliza Google Analytics, esta es una herramienta de analítica que ayuda a los sitios web y a los propietarios de aplicaciones a entender el modo en que sus visitantes interactúan con sus propiedades. Se utilizan un conjunto de cookies para recopilar información e informar de las estadísticas de uso de los sitios web sin identificar personalmente a los visitantes de Google. Más información sobre las cookies de Google Analytics e información sobre la privacidad. Estas cookies se pueden rechazar o aceptar ya que no interfieren en el funcionamiento de la página web pero sirven de gran ayuda aportando información que posibilita un mejor y más apropiado servicio por parte de este portal.

Por último, se descarga una cookie de tipo técnico denominada cookie-compliance, propia, de tipo técnico y de sesión. Gestiona el consentimiento del usuario ante el uso de las cookies en la página web, con el objeto de recordar aquellos usuarios que las han aceptado y aquellos que no, de modo que a los primeros no se les muestre información en la parte superior de la página al respecto. Esta cookie es de obligada utilización para el funcionamiento correcto del portal.

Aceptación / Rechazo de la Política de cookies

El Ministerio de Agricultura, Pesca y Alimentación permite la aceptación o rechazo de las cookies no esenciales para el funcionamiento del portal. Para ello una vez que el usuario acceda al portal se mostrará un mensaje en la parte central con información de la política de cookies y las siguientes opciones:

  • Aceptar cookies: Si el usuario pulsa este botón, se aceptarán los cookies no obligatorias y no se volverá a visualizar este aviso al acceder a cualquier página del portal.
  • Configurar cookies: Si el usuario pulsa sobre el botón de configurar, se accederá a una segunda ventana modal donde se podrá configurar que cookies aceptar. Esta segunda ventana explica las cookies utilizadas en la actualidad y permite la selección o rechazo de las cookies no obligatorias. Una vez finalizada la selección se deberá presionar al botón Guardar configuración.

Cómo modificar la configuración de las cookies

Usted puede restringir, bloquear o borrar las cookies del Ministerio de Agricultura, Pesca y Alimentación o cualquier otra página web, utilizando su navegador. En cada navegador la operativa es diferente, la función de "Ayuda" le mostrará cómo hacerlo.